- Ruimte 49 m2
- Slaapkamers 1
- Beschikbaar 01-04-2026
Beschrijving
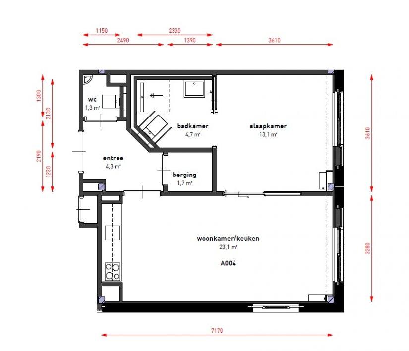
Dit comfortabele zorgappartement heeft een praktische en overzichtelijke indeling en is ontworpen met oog voor zelfstandig en veilig wonen.
Via de entree komt u in de centrale hal die toegang biedt tot alle vertrekken. Vanuit hier bereikt u de separate toiletruimte, de badkamer en een handige berging, ideaal voor extra opslag.
De badkamer is functioneel ingericht en voorzien van een douche en wastafel, met voldoende ruimte voor zorgondersteuning indien nodig.
De woonkamer met open keuken vormt het hart van het appartement. De keuken is praktisch opgesteld en uitgerust met de benodigde voorzieningen. De ruimte biedt volop mogelijkheden voor een comfortabele zit- en eethoek en geniet van een prettige lichtinval.
De slaapkamer is ruim opgezet en biedt voldoende plaats voor een bed, kastruimte en eventuele hulpmiddelen, wat bijdraagt aan een comfortabele en rustige woonomgeving.
Het appartement is gelijkvloers, goed toegankelijk en overzichtelijk ingedeeld. U heeft inpandig toegang tot de uitgebreide faciliteiten van Hof Ravensteijn.
Het appartement is voorzien van:
• Vloerafwerking
• Wandafwerking
• Gordijnen (onderdeel van de servicekosten)
• Plafondverlichting (onderdeel van de servicekosten)
• Keuken (excl. los te plaatsen koelkast en vaatwasser)
• Sanitair
Let u op! De servicekosten zijn momenteel nog niet bekend en zullen later worden gepubliceerd!
Disclaimer: Foto’s dienen ter sfeerimpressie en kunnen afwijken van het daadwerkelijke appartementstype.
Houdt u er rekening mee dat uw actuele gegevens bij ons bekend moeten zijn om uw reactie te kunnen beoordelen.
Vriendelijk verzoeken wij u deze gegevens te uploaden in uw portaal:*
– kopie paspoort of identiteitsbewijs (voor- en achterzijde). Let op: geen rijbewijs;
– inkomensverklaring 2024 (indien niet beschikbaar van 2023) van de Belastingdienst. Deze
verklaring kunt u via de website met behulp van uw DigiD opvragen. Meer informatie vindt
u via de website van de Belastingdienst;
– recente werkgeversverklaring (indien van toepassing);
– loonstroken en/of uitkeringsspecificaties van de laatste drie maanden;
– laatst ontvangen jaaropgaven van pensioen- en of uitkeringsinstanties en SVB (indien van
toepassing)
– recente verhuurdersverklaring (indien van toepassing).
*) Heeft u deze gegevens reeds aangeleverd en zijn deze nog actueel? Dan is opnieuw
aanleveren niet nodig.
Enkel compleet aangeleverde dossiers kunnen financieel beoordeeld worden.
Om de gegevens te uploaden logt u via https://mijn.woonvoort.nl in op uw portaal middels de door u opgegeven gebruikersnaam.
Kenmerken
- Status
- Beschikbaar
- Beschikbaar
- 01-04-2026
- Woning type
- Slaapkamers
- 1
- Badkamers
- 1
- Oppervlakte
- 49 m²
- Intercom
- Keuken
- Kale huurprijs
- € 908,93
- Borg
- € 1.363,40

































