- Ruimte 53 m2
- Slaapkamers 1
- Beschikbaar 01-04-2026
Beschrijving
Dit zorgvuldig ingedeelde zorgappartement biedt een prettige combinatie van zelfstandigheid en geborgenheid. De woning is ontworpen met het oog op comfort, overzicht en toegankelijkheid, ideaal voor wie graag gelijkvloers en zorgeloos wil wonen.
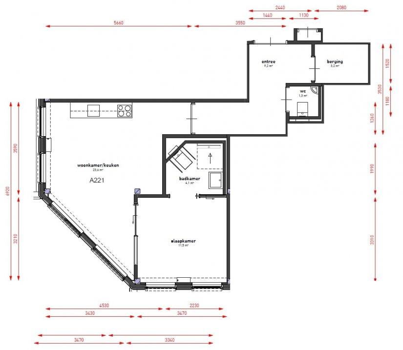
Bij binnenkomst valt direct de ruime entree op, die toegang geeft tot alle vertrekken. De lichte woonkamer met open keuken vormt het hart van de woning. Dankzij de grote raampartijen en de hoekligging komt er volop daglicht binnen, wat zorgt voor een aangename en open sfeer. De keuken is praktisch opgesteld en sluit naadloos aan op de leefruimte, waardoor koken en wonen op een natuurlijke manier samenkomen.
De slaapkamer is rustig gelegen en biedt voldoende ruimte voor een comfortabel bed en kastruimte. Aangrenzend bevindt zich de badkamer, die functioneel en overzichtelijk is ingericht en goed toegankelijk is. Daarnaast beschikt het appartement over een separaat toilet en een interne berging, ideaal voor extra opslag of hulpmiddelen.
Een bijzonder pluspunt is de logische en drempelarme indeling, waardoor het appartement goed geschikt is voor zorgondersteuning. De woning maakt deel uit van een zorgomgeving waar veiligheid, bereikbaarheid en wooncomfort centraal staan.
Kortom: een prettig, licht en praktisch zorgappartement waar zelfstandig wonen hand in hand gaat met comfort en gemoedsrust.
U heeft inpandig toegang tot de uitgebreide faciliteiten van Hof Ravensteijn.
Het appartement is voorzien van:
• Vloerafwerking
• Wandafwerking
• Gordijnen (onderdeel van de servicekosten)
• Plafondverlichting (onderdeel van de servicekosten)
• Keuken (excl. los te plaatsen koelkast en vaatwasser)
• Sanitair
Let u op! De servicekosten zijn momenteel nog niet bekend en zullen later worden gepubliceerd!
Disclaimer: Foto’s dienen ter sfeerimpressie en kunnen afwijken van het daadwerkelijke appartementstype.
Houdt u er rekening mee dat uw actuele gegevens bij ons bekend moeten zijn om uw reactie te kunnen beoordelen.
Vriendelijk verzoeken wij u deze gegevens te uploaden in uw portaal:*
– kopie paspoort of identiteitsbewijs (voor- en achterzijde). Let op: geen rijbewijs;
– inkomensverklaring 2024 (indien niet beschikbaar van 2023) van de Belastingdienst. Deze
verklaring kunt u via de website met behulp van uw DigiD opvragen. Meer informatie vindt
u via de website van de Belastingdienst;
– recente werkgeversverklaring (indien van toepassing);
– loonstroken en/of uitkeringsspecificaties van de laatste drie maanden;
– laatst ontvangen jaaropgaven van pensioen- en of uitkeringsinstanties en SVB (indien van
toepassing)
– recente verhuurdersverklaring (indien van toepassing).
*) Heeft u deze gegevens reeds aangeleverd en zijn deze nog actueel? Dan is opnieuw
aanleveren niet nodig.
Enkel compleet aangeleverde dossiers kunnen financieel beoordeeld worden.
Om de gegevens te uploaden logt u via https://mijn.woonvoort.nl in op uw portaal middels de door u opgegeven gebruikersnaam.
Kenmerken
- Status
- Onder optie
- Beschikbaar
- 01-04-2026
- Woning type
- Slaapkamers
- 1
- Badkamers
- 1
- Oppervlakte
- 53 m²
- Intercom
- Keuken
- Kale huurprijs
- € 908,93
- Voorschot servicekosten
- € 112,00
- Voorschot energiekosten
- € 193,38
- Borg
- € 1.817,86

















































