- Ruimte 48 m2
- Slaapkamers 1
- Beschikbaar 01-04-2026
Beschrijving
Dit comfortabel ingedeelde zorgappartement biedt een fijne woonomgeving voor wie zelfstandig wil wonen met zorg en ondersteuning binnen handbereik. De woning is gelijkvloers en praktisch ingericht, met veel aandacht voor comfort en gebruiksgemak.
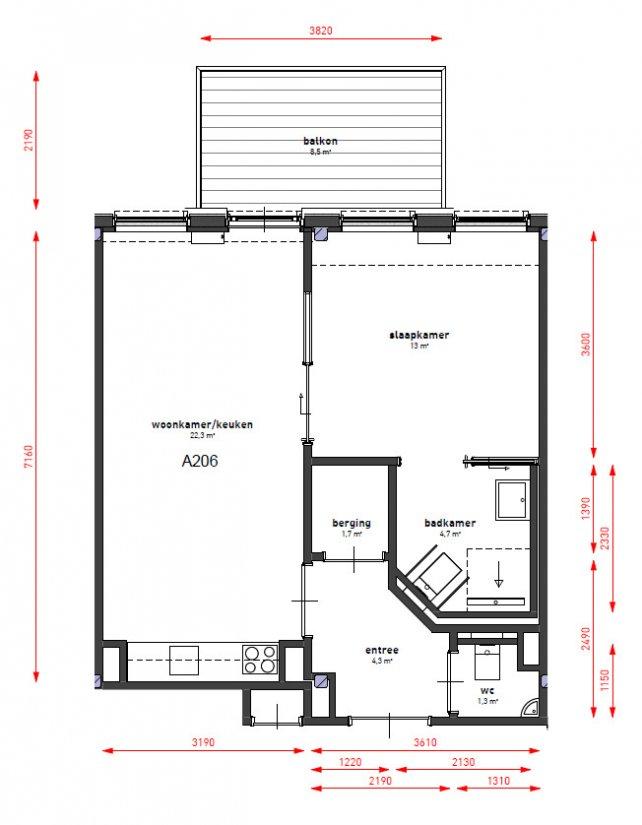
Via de entree bereikt u de verschillende vertrekken van het appartement. De lichte woonkamer met open keuken vormt een aangename leefruimte waar u kunt ontspannen, koken en eten. De grote raampartijen zorgen voor een prettige lichtinval en geven direct toegang tot het ruime balkon. Dit balkon is een heerlijke plek om buiten te zitten en te genieten van de frisse lucht.
De slaapkamer is rustig gelegen en biedt voldoende ruimte voor een comfortabel bed en kastruimte. De badkamer is praktisch ingericht en voorzien van een douche en wastafel en toilet afgestemd op veilig en comfortabel gebruik. Daarnaast beschikt het appartement over een separaat toilet, wat extra gemak biedt. Een interne berging zorgt voor extra opbergruimte.
Dit zorgappartement combineert zelfstandig wonen met de zekerheid van zorgvoorzieningen in de nabijheid. Een comfortabele en overzichtelijke woning waar rust en woonplezier centraal staan.
U heeft inpandig toegang tot de uitgebreide faciliteiten van Hof Ravensteijn.
Het appartement is voorzien van:
• Vloerafwerking
• Wandafwerking
• Gordijnen (onderdeel van de servicekosten)
• Plafondverlichting (onderdeel van de servicekosten)
• Keuken (excl. los te plaatsen koelkast en vaatwasser)
• Sanitair
Let u op! De servicekosten zijn momenteel nog niet bekend en zullen later worden gepubliceerd!
Disclaimer: Foto’s dienen ter sfeerimpressie en kunnen afwijken van het daadwerkelijke appartementstype.
Houdt u er rekening mee dat uw actuele gegevens bij ons bekend moeten zijn om uw reactie te kunnen beoordelen.
Vriendelijk verzoeken wij u deze gegevens te uploaden in uw portaal:*
– kopie paspoort of identiteitsbewijs (voor- en achterzijde). Let op: geen rijbewijs;
– inkomensverklaring 2024 (indien niet beschikbaar van 2023) van de Belastingdienst. Deze
verklaring kunt u via de website met behulp van uw DigiD opvragen. Meer informatie vindt
u via de website van de Belastingdienst;
– recente werkgeversverklaring (indien van toepassing);
– loonstroken en/of uitkeringsspecificaties van de laatste drie maanden;
– laatst ontvangen jaaropgaven van pensioen- en of uitkeringsinstanties en SVB (indien van
toepassing)
– recente verhuurdersverklaring (indien van toepassing).
*) Heeft u deze gegevens reeds aangeleverd en zijn deze nog actueel? Dan is opnieuw
aanleveren niet nodig.
Enkel compleet aangeleverde dossiers kunnen financieel beoordeeld worden.
Om de gegevens te uploaden logt u via https://mijn.woonvoort.nl in op uw portaal middels de door u opgegeven gebruikersnaam.
Kenmerken
- Status
- Beschikbaar
- Beschikbaar
- 01-04-2026
- Woning type
- Slaapkamers
- 1
- Badkamers
- 1
- Oppervlakte
- 48 m²
- Intercom
- Keuken
- Kale huurprijs
- € 908,93
- Borg
- € 1.363,40



































