- Ruimte 50 m2
- Slaapkamers 1
- Beschikbaar 01-04-2026
Beschrijving
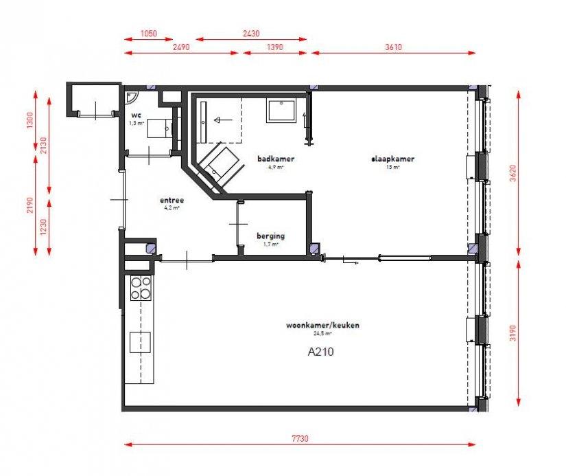
Dit prettig ingedeelde zorgappartement biedt een comfortabele en veilige woonomgeving voor bewoners die zelfstandig willen wonen met de mogelijkheid tot zorg en ondersteuning. De woning is volledig gelijkvloers en praktisch ingedeeld, met alle vertrekken overzichtelijk bereikbaar vanuit de entree.
De woonkamer met open keuken vormt het centrale leefgedeelte van de woning. Dankzij de grote raampartijen is er veel natuurlijk licht, wat zorgt voor een aangename en rustige sfeer. Er is voldoende ruimte voor zowel een zithoek als een eethoek. De keuken is functioneel opgesteld en geschikt voor dagelijks gebruik.
De slaapkamer is rustig gelegen en biedt voldoende ruimte voor een bed en kastruimte. Aangrenzend bevindt zich de badkamer, die is voorzien van een douche, wastafel en een toilet. Daarnaast beschikt de woning over een separaat toilet, wat extra comfort biedt voor bewoners en bezoekers.
Via de entree zijn alle ruimtes goed toegankelijk. De aanwezige berging biedt praktische opslagruimte voor bijvoorbeeld hulpmiddelen of huishoudelijke spullen.
Dit zorgappartement is uitermate geschikt voor bewoners die comfortabel, veilig en zelfstandig willen wonen, met zorgvoorzieningen binnen handbereik en een praktische, overzichtelijke indeling.
U heeft inpandig toegang tot de uitgebreide faciliteiten van Hof Ravensteijn.
Het appartement is voorzien van:
• Vloerafwerking
• Wandafwerking
• Gordijnen (onderdeel van de servicekosten)
• Plafondverlichting (onderdeel van de servicekosten)
• Keuken (excl. los te plaatsen koelkast en vaatwasser)
• Sanitair
Let u op! De servicekosten zijn momenteel nog niet bekend en zullen later worden gepubliceerd!
Disclaimer: Foto’s dienen ter sfeerimpressie en kunnen afwijken van het daadwerkelijke appartementstype.
Houdt u er rekening mee dat uw actuele gegevens bij ons bekend moeten zijn om uw reactie te kunnen beoordelen.
Vriendelijk verzoeken wij u deze gegevens te uploaden in uw portaal:*
– kopie paspoort of identiteitsbewijs (voor- en achterzijde). Let op: geen rijbewijs;
– inkomensverklaring 2024 (indien niet beschikbaar van 2023) van de Belastingdienst. Deze
verklaring kunt u via de website met behulp van uw DigiD opvragen. Meer informatie vindt
u via de website van de Belastingdienst;
– recente werkgeversverklaring (indien van toepassing);
– loonstroken en/of uitkeringsspecificaties van de laatste drie maanden;
– laatst ontvangen jaaropgaven van pensioen- en of uitkeringsinstanties en SVB (indien van
toepassing)
– recente verhuurdersverklaring (indien van toepassing).
*) Heeft u deze gegevens reeds aangeleverd en zijn deze nog actueel? Dan is opnieuw
aanleveren niet nodig.
Enkel compleet aangeleverde dossiers kunnen financieel beoordeeld worden.
Om de gegevens te uploaden logt u via https://mijn.woonvoort.nl in op uw portaal middels de door u opgegeven gebruikersnaam.
Kenmerken
- Status
- Beschikbaar
- Beschikbaar
- 01-04-2026
- Woning type
- Slaapkamers
- 1
- Badkamers
- 1
- Oppervlakte
- 50 m²
- Keuken
- Kale huurprijs
- € 908,93
- Borg
- € 1.363,40































