- Ruimte 60 m2
- Slaapkamers 1
- Beschikbaar 01-04-2026
Beschrijving
Dit aangename zorgappartement combineert een doordachte indeling met veel licht en een prettig gevoel van ruimte. De woning is volledig gelijkvloers en ontworpen met oog voor comfort, toegankelijkheid en zelfstandig wonen.
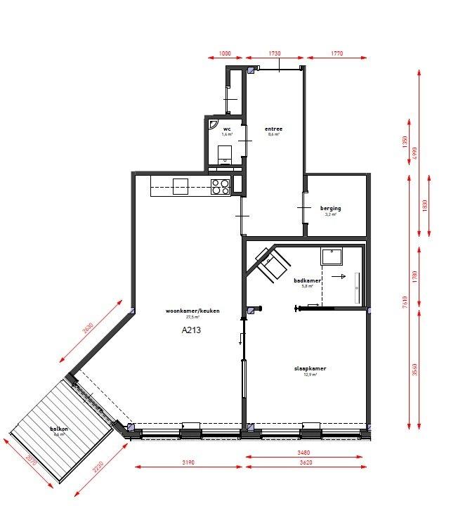
Via de entree zijn alle vertrekken overzichtelijk bereikbaar. De woonkamer met open keuken vormt het centrale leefgedeelte en profiteert van een fijne lichtinval dankzij de hoekligging. De keuken is praktisch opgesteld en sluit direct aan op de woonruimte, waardoor koken en wonen moeiteloos samenkomen.
De slaapkamer is rustig gelegen en biedt voldoende ruimte voor een comfortabel bed en kastruimte. Aangrenzend bevindt zich de badkamer, die functioneel en overzichtelijk is ingericht en goed toegankelijk is. Daarnaast beschikt het appartement over een separaat toilet en een interne berging, ideaal voor extra opslag of het netjes uit het zicht houden van hulpmiddelen.
Een bijzonder pluspunt is het balkon, dat vanuit de woonkamer bereikbaar is. Dit biedt een fijne plek om buiten te zitten en te genieten van frisse lucht, met behoud van privacy en rust.
Dankzij de drempelarme opzet en logische indeling is dit appartement uitstekend geschikt voor zorgondersteuning, zowel nu als in de toekomst. Een comfortabele en fijne woonomgeving waar zelfstandigheid centraal staat, met zorg altijd dichtbij.
U heeft inpandig toegang tot de uitgebreide faciliteiten van Hof Ravensteijn.
Het appartement is voorzien van:
• Vloerafwerking
• Wandafwerking
• Gordijnen (onderdeel van de servicekosten)
• Plafondverlichting (onderdeel van de servicekosten)
• Keuken (excl. los te plaatsen koelkast en vaatwasser)
• Sanitair
Let u op! De servicekosten zijn momenteel nog niet bekend en zullen later worden gepubliceerd!
Disclaimer: Foto’s dienen ter sfeerimpressie en kunnen afwijken van het daadwerkelijke appartementstype.
Houdt u er rekening mee dat uw actuele gegevens bij ons bekend moeten zijn om uw reactie te kunnen beoordelen.
Vriendelijk verzoeken wij u deze gegevens te uploaden in uw portaal:*
– kopie paspoort of identiteitsbewijs (voor- en achterzijde). Let op: geen rijbewijs;
– inkomensverklaring 2024 (indien niet beschikbaar van 2023) van de Belastingdienst. Deze
verklaring kunt u via de website met behulp van uw DigiD opvragen. Meer informatie vindt
u via de website van de Belastingdienst;
– recente werkgeversverklaring (indien van toepassing);
– loonstroken en/of uitkeringsspecificaties van de laatste drie maanden;
– laatst ontvangen jaaropgaven van pensioen- en of uitkeringsinstanties en SVB (indien van
toepassing)
– recente verhuurdersverklaring (indien van toepassing).
*) Heeft u deze gegevens reeds aangeleverd en zijn deze nog actueel? Dan is opnieuw
aanleveren niet nodig.
Enkel compleet aangeleverde dossiers kunnen financieel beoordeeld worden.
Om de gegevens te uploaden logt u via https://mijn.woonvoort.nl in op uw portaal middels de door u opgegeven gebruikersnaam.
Kenmerken
- Status
- Beschikbaar
- Beschikbaar
- 01-04-2026
- Woning type
- Slaapkamers
- 1
- Badkamers
- 1
- Oppervlakte
- 60 m²
- Intercom
- Keuken
- Kale huurprijs
- € 908,93
- Borg
- € 1.363,40





























