- Ruimte 51 m2
- Slaapkamers
- Beschikbaar 01-04-2026
Beschrijving
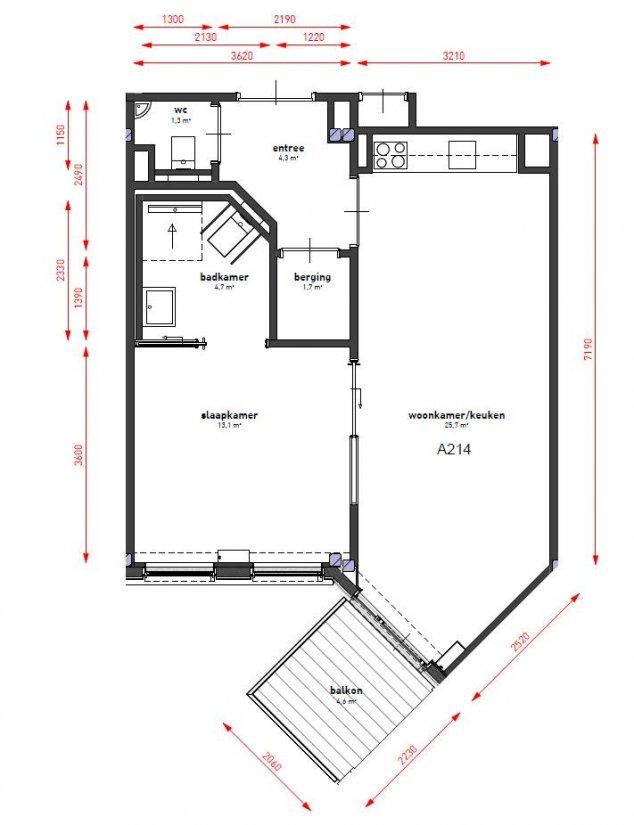
Dit prettig ingedeelde zorgappartement biedt een comfortabele en veilige woonomgeving, met alle voorzieningen overzichtelijk en gelijkvloers. De woning is ontworpen met het oog op gemak en toegankelijkheid, ideaal voor wie zelfstandig wil wonen met zorg binnen handbereik.
Via de entree komt u in de hal die toegang biedt tot alle ruimtes. De lichte woonkamer met open keuken vormt een fijne leefruimte waar u comfortabel kunt ontspannen, koken en eten. De grote ramen zorgen voor een aangename lichtinval en geven toegang tot het balkon, een prettige plek om buiten te zitten en te genieten van frisse lucht.
De slaapkamer is ruim opgezet en biedt voldoende plaats voor een bed en kastruimte. De badkamer is praktisch ingericht en voorzien van een douche, wastafel én toilet, afgestemd op comfortabel en veilig gebruik. Daarnaast beschikt het appartement over een interne berging voor extra opslag.
Dit zorgappartement combineert zelfstandig wonen met de zekerheid van zorg en ondersteuning in de directe nabijheid. Een fijne en veilige woonplek waar comfort, rust en gemak centraal staan.
U heeft inpandig toegang tot de uitgebreide faciliteiten van Hof Ravensteijn.
Het appartement is voorzien van:
• Vloerafwerking
• Wandafwerking
• Gordijnen (onderdeel van de servicekosten)
• Plafondverlichting (onderdeel van de servicekosten)
• Keuken (excl. los te plaatsen koelkast en vaatwasser)
• Sanitair
Let u op! De servicekosten zijn momenteel nog niet bekend en zullen later worden gepubliceerd!
Disclaimer: Foto’s dienen ter sfeerimpressie en kunnen afwijken van het daadwerkelijke appartementstype.
Houdt u er rekening mee dat uw actuele gegevens bij ons bekend moeten zijn om uw reactie te kunnen beoordelen.
Vriendelijk verzoeken wij u deze gegevens te uploaden in uw portaal:*
– kopie paspoort of identiteitsbewijs (voor- en achterzijde). Let op: geen rijbewijs;
– inkomensverklaring 2024 (indien niet beschikbaar van 2023) van de Belastingdienst. Deze
verklaring kunt u via de website met behulp van uw DigiD opvragen. Meer informatie vindt
u via de website van de Belastingdienst;
– recente werkgeversverklaring (indien van toepassing);
– loonstroken en/of uitkeringsspecificaties van de laatste drie maanden;
– laatst ontvangen jaaropgaven van pensioen- en of uitkeringsinstanties en SVB (indien van
toepassing)
– recente verhuurdersverklaring (indien van toepassing).
*) Heeft u deze gegevens reeds aangeleverd en zijn deze nog actueel? Dan is opnieuw
aanleveren niet nodig.
Enkel compleet aangeleverde dossiers kunnen financieel beoordeeld worden.
Om de gegevens te uploaden logt u via https://mijn.woonvoort.nl in op uw portaal middels de door u opgegeven gebruikersnaam.
Kenmerken
- Status
- Beschikbaar
- Beschikbaar
- 01-04-2026
- Woning type
- Oppervlakte
- 51 m²
- Kale huurprijs
- € 908,93
- Borg
- € 1.363,40































