- Ruimte 53 m2
- Slaapkamers 1
- Beschikbaar 01-04-2026
Beschrijving
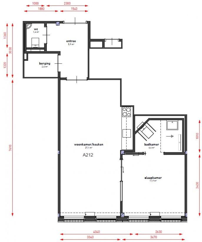
Dit verzorgde zorgappartement is ontworpen voor prettig en zelfstandig wonen, met aandacht voor comfort, veiligheid en een logische indeling. Alle ruimtes bevinden zich op één woonlaag en zijn goed bereikbaar.
Via de entree heeft u toegang tot de verschillende vertrekken. De ruime woonkamer met open keuken vormt het centrale leefgedeelte van de woning. Dankzij de grote raampartijen is deze ruimte aangenaam licht en voelt zij open en uitnodigend aan. De keuken is praktisch gepositioneerd en biedt een prettige verbinding met de leefruimte, ideaal voor dagelijks gebruik en bezoek.
De slaapkamer is rustig gelegen en biedt voldoende ruimte voor een comfortabel bed en kastruimte. Direct aangrenzend bevindt zich de badkamer, die overzichtelijk en functioneel is ingericht en goed toegankelijk is. Daarnaast beschikt het appartement over een separaat toilet en een interne berging, handig voor extra opslag.
De overzichtelijke, drempelarme indeling maakt dit appartement bijzonder geschikt voor zorgondersteuning, zowel nu als in de toekomst. In combinatie met de rustige woonomgeving biedt deze woning een veilige en comfortabele plek om zelfstandig te wonen met de zekerheid van zorg binnen handbereik.
U heeft inpandig toegang tot de uitgebreide faciliteiten van Hof Ravensteijn.
Het appartement is voorzien van:
• Vloerafwerking
• Wandafwerking
• Gordijnen (onderdeel van de servicekosten)
• Plafondverlichting (onderdeel van de servicekosten)
• Keuken (excl. los te plaatsen koelkast en vaatwasser)
• Sanitair
Let u op! De servicekosten zijn momenteel nog niet bekend en zullen later worden gepubliceerd!
Disclaimer: Foto’s dienen ter sfeerimpressie en kunnen afwijken van het daadwerkelijke appartementstype.
Houdt u er rekening mee dat uw actuele gegevens bij ons bekend moeten zijn om uw reactie te kunnen beoordelen.
Vriendelijk verzoeken wij u deze gegevens te uploaden in uw portaal:*
– kopie paspoort of identiteitsbewijs (voor- en achterzijde). Let op: geen rijbewijs;
– inkomensverklaring 2024 (indien niet beschikbaar van 2023) van de Belastingdienst. Deze
verklaring kunt u via de website met behulp van uw DigiD opvragen. Meer informatie vindt
u via de website van de Belastingdienst;
– recente werkgeversverklaring (indien van toepassing);
– loonstroken en/of uitkeringsspecificaties van de laatste drie maanden;
– laatst ontvangen jaaropgaven van pensioen- en of uitkeringsinstanties en SVB (indien van
toepassing)
– recente verhuurdersverklaring (indien van toepassing).
*) Heeft u deze gegevens reeds aangeleverd en zijn deze nog actueel? Dan is opnieuw
aanleveren niet nodig.
Enkel compleet aangeleverde dossiers kunnen financieel beoordeeld worden.
Kenmerken
- Status
- Beschikbaar
- Beschikbaar
- 01-04-2026
- Woning type
- Slaapkamers
- 1
- Badkamers
- 1
- Oppervlakte
- 53 m²
- Intercom
- Keuken
- Kale huurprijs
- € 908,93
- Voorschot servicekosten
- € 112,00
- Voorschot energiekosten
- € 154,64
- Borg
- € 1.817,86



















































